Stella Alpina is één chalet met twee woningen onder één dak, compleet en comfortabel ingericht. Geclassificeerd als 3*** Holyday Comfort Apartment door het Schweizer-Tourismus Verband.
De woning is van alle gemakken voorzien, inclusief snelle internetverbinding. Er is tevens een eigen parkeerplaats bij de woning met een privé EV-laadstation.
Het vakantiehuis is omgeven door een tuin met fruitbomen, wijnranken en rozenstruiken. Het huis grenst aan een typische alpenweide.
Alle ruimtes zijn gelijkvloers; balkon op het zuiden en westen.
Wordt momenteel niet verhuurd.
In en rond het chalet is de gratis Wi-Fi beschikbaar – download 80 Mb/s, upload 20 Mb/s.
Eigen parkeerplek bij de woning met optie tot EV-laden op de eigen woning-kWh-meter.
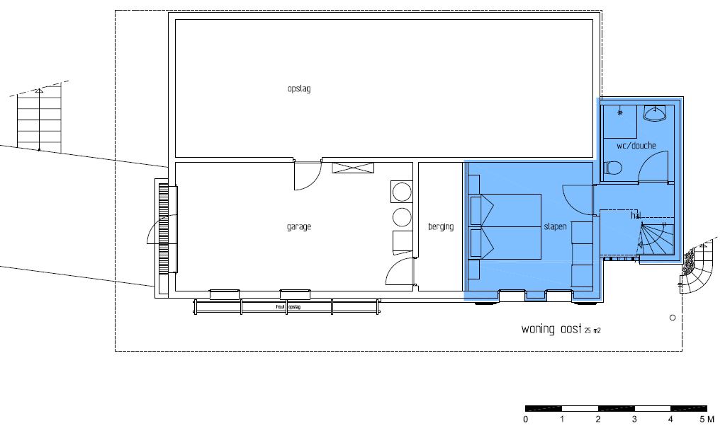
Kan afzonderlijk worden gehuurd. Vrije doorgang garagedeur: maximale breedte 2,25m en hoogte 1,85m.
Huurders hebben vrij toegang tot de garage voor gebruik van wasmachine en centrifuge.
Klik op de afbeelding voor een vergroting.
De wonomg heeft de volgende voorzieningen:
Dankzij de ingesloten ligging tussen 2 bergketens heeft het kanton Wallis een bijzonder klimaat. De bergen houden veel neerslag tegen en dat zorgt er voor, dat Wallis het zonnigste gedeelte van Zwitserland is met een rijke flora en fauna.
Stella Alpina in Breiten is het gehele jaar vanuit het dal via een goede asfaltweg na 1,3 km bereikbaar. Het huis staat aan de dorpsrand op de zonnige zuidhelling van de Berner Alpen. Vanaf balkon en terras heeft u een prachtig panoramazicht op de Walliser Alpen en het Rhônedal. De wandelpaden beginnen direct bij de voordeur.
Breiten (864 m) is gelegen op een "zonneterras" in Oberwallis (Duitstalig), ongeveer 8 km ten oosten van Brig. Naast de 170 permanente bewoners en vakantiewoningen is er een hotel, restaurant en kuurbad met zouthoudend water van 33° Celsius.
Het 100 meter lager gelegen Mörel is te voet vanuit Stella Alpina via de weg of wandelpad in 20 minuten te bereiken. Mörel heeft een Walliser dorpskern en voorzieningen voor de dagelijkse boodschappen, zoals supermarkt, warme bakker en ambachtelijke slager.
Mörel heeft een station dat via Brig verbonden is met het internationale spoorwegnet. Vanuit Mörel gaan 2 bergbanen naar de Aletsch Arena 1905m – 2927m. Een uniek
wandelparadijs en uitgebreid skigebied.
Handige en informatieve links:
Gemeinde Mörel-Filet - Mörel verkennen
UNESCO - Welterbe Jungfrau-Aletsch
Pro Natura Aletsch - Villa Cassel, Riederfurka
Swiss Map - digitale kaart van Zwitserland
SRF Meteo - Mörel - prognose 5 dagen
Wintersportbericht Aletsch Arena


